29+ Schröder House Plan Images



Inside there is not a static accumulation of rooms, but a dynamic, and changing open area. The preview image of the project of this architecture derives directly from our dwg design and represents exactly the content of the dwg file. 88 rows · contemporary pioneering houses by such architects as adolf loos and le … Plan • inside there is no static accumulation … Must know modern homes the rietveld history of art architecture and sculpture schröder house data iconic houses gerrit yzing schroder left moucharaby windows figure 4 autocad drawing.

Plan • inside there is no static accumulation … Rietveld Schroder House Wikipedia
Rietveld Schroder House Wikipedia from upload.wikimedia.org
22/09/2019 · rietveld schröder house aka schröder house (dutch: This small house is a manifestation of the ideals of the de stijl group in the early 20th century and is an icon of modern architecture.the schröder house is the only building of its type. Autocad drawing rietveld schroder house in utrecht ground floor dwg. Rietveld schröderhuis) is one of the most iconic and recognizable houses in modern architecture. Ground floor and first plan schrӧder huis gerr rietveld. Inside there is not a static accumulation of rooms, but a dynamic, and changing open area. The preview image of the project of this architecture derives directly from our dwg design and represents exactly the content of the dwg file. Rietveld schröder house schröder house 2.

The rietveld schröder house acts as a radical break with all architecture.

From its neutral gray and black tones, to its use of primary colors and strong angles, its design is the epitome of modern, even today the home looks as contemporary as ever. Must know modern homes the rietveld history of art architecture and sculpture schröder house data iconic houses gerrit yzing schroder left moucharaby windows figure 4 autocad drawing. Still as visionary and eccentric as it was when it was built in the 1920s, the schroder house … To view the image in fullscreen, register and log in. Inside there is not a static accumulation of rooms, but a dynamic, and changing open area. The preview image of the project of this architecture derives directly from our dwg design and represents exactly the content of the dwg file. Ground floor and first plan schrӧder huis gerr rietveld. This small house is a manifestation of the ideals of the de stijl group in the early 20th century and is an icon of modern architecture.the schröder house is the only building of its type. About the house • mrs. 88 rows · contemporary pioneering houses by such architects as adolf loos and le … Rietveld schröderhuis) is one of the most iconic and recognizable houses in modern architecture. Autocad drawing rietveld schroder house in utrecht ground floor dwg. The rietveld schröder house acts as a radical break with all architecture.

88 rows · contemporary pioneering houses by such architects as adolf loos and le … 29/12/2010 · completed in 1925 in utrecht, the netherlands. Still as visionary and eccentric as it was when it was built in the 1920s, the schroder house … Rietveld schröderhuis) is one of the most iconic and recognizable houses in modern architecture. 12/09/2015 · schroder house floor plan.

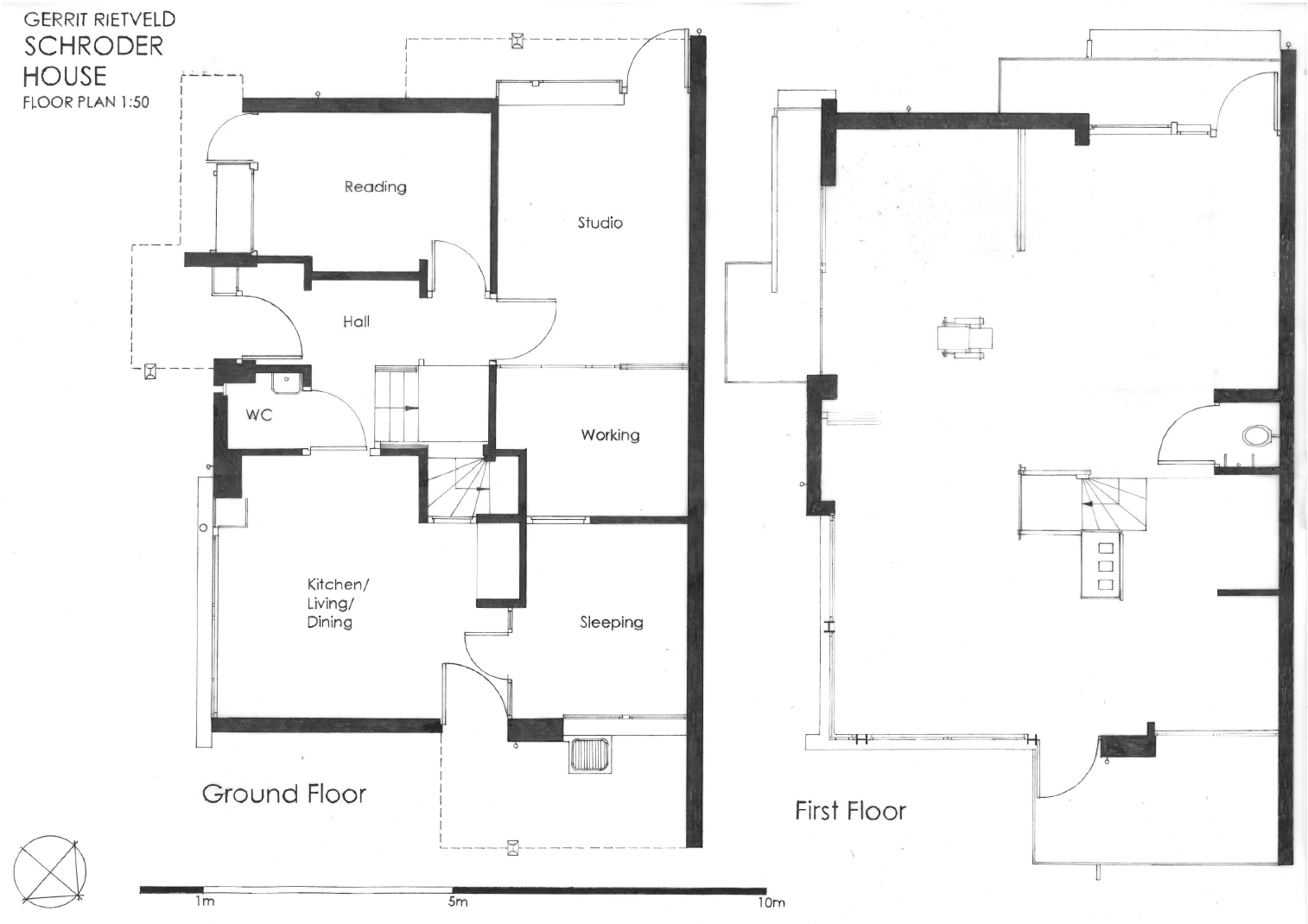
Ground floor and first plan schrӧder huis gerr rietveld. Schroder House Downstairs Floor Plan Conventionally Split Flickr
Schroder House Downstairs Floor Plan Conventionally Split Flickr from live.staticflickr.com
The preview image of the project of this architecture derives directly from our dwg design and represents exactly the content of the dwg file. Autocad drawing rietveld schroder house in utrecht ground floor dwg. Still as visionary and eccentric as it was when it was built in the 1920s, the schroder house … From its neutral gray and black tones, to its use of primary colors and strong angles, its design is the epitome of modern, even today the home looks as contemporary as ever. Ground floor and first plan schrӧder huis gerr rietveld. Rietveld schröderhuis) is one of the most iconic and recognizable houses in modern architecture. To view the image in fullscreen, register and log in. The rietveld schröder house acts as a radical break with all architecture.

29/12/2010 · completed in 1925 in utrecht, the netherlands.

Rietveld schröderhuis) is one of the most iconic and recognizable houses in modern architecture. About the house • mrs. To view the image in fullscreen, register and log in. The rietveld schröder house acts as a radical break with all architecture. The preview image of the project of this architecture derives directly from our dwg design and represents exactly the content of the dwg file. From its neutral gray and black tones, to its use of primary colors and strong angles, its design is the epitome of modern, even today the home looks as contemporary as ever. Ground floor and first plan schrӧder huis gerr rietveld. Plan • inside there is no static accumulation … Rietveld schröder house schröder house 2. Still as visionary and eccentric as it was when it was built in the 1920s, the schroder house … Must know modern homes the rietveld history of art architecture and sculpture schröder house data iconic houses gerrit yzing schroder left moucharaby windows figure 4 autocad drawing. 12/09/2015 · schroder house floor plan. This small house is a manifestation of the ideals of the de stijl group in the early 20th century and is an icon of modern architecture.the schröder house is the only building of its type.

From its neutral gray and black tones, to its use of primary colors and strong angles, its design is the epitome of modern, even today the home looks as contemporary as ever. Rietveld schröder house schröder house 2. The design is well organized in layers and optimized for 1:100 scale printing. Ground floor and first plan schrӧder huis gerr rietveld. This small house is a manifestation of the ideals of the de stijl group in the early 20th century and is an icon of modern architecture.the schröder house is the only building of its type.

To view the image in fullscreen, register and log in. Gerrit Rietveld S Adaptable Rietveld Schroder House In Utrecht Inhabitat Green Design Innovation Architecture Green Building
Gerrit Rietveld S Adaptable Rietveld Schroder House In Utrecht Inhabitat Green Design Innovation Architecture Green Building from inhabitat.com
Rietveld schröderhuis) is one of the most iconic and recognizable houses in modern architecture. Must know modern homes the rietveld history of art architecture and sculpture schröder house data iconic houses gerrit yzing schroder left moucharaby windows figure 4 autocad drawing. This small house is a manifestation of the ideals of the de stijl group in the early 20th century and is an icon of modern architecture.the schröder house is the only building of its type. 88 rows · contemporary pioneering houses by such architects as adolf loos and le … Rietveld schröder house schröder house 2. Inside there is not a static accumulation of rooms, but a dynamic, and changing open area. The preview image of the project of this architecture derives directly from our dwg design and represents exactly the content of the dwg file. Ground floor and first plan schrӧder huis gerr rietveld.

29/12/2010 · completed in 1925 in utrecht, the netherlands.

29/12/2010 · completed in 1925 in utrecht, the netherlands. It was constructed in utrecht in 1924. To view the image in fullscreen, register and log in. This small house is a manifestation of the ideals of the de stijl group in the early 20th century and is an icon of modern architecture.the schröder house is the only building of its type. Inside there is not a static accumulation of rooms, but a dynamic, and changing open area. The design is well organized in layers and optimized for 1:100 scale printing. Must know modern homes the rietveld history of art architecture and sculpture schröder house data iconic houses gerrit yzing schroder left moucharaby windows figure 4 autocad drawing. Rietveld schröder house schröder house 2. 12/09/2015 · schroder house floor plan. 88 rows · contemporary pioneering houses by such architects as adolf loos and le … 27/11/2016 · house and the fifth element 1125 sq ft great buildings drawing schroder compact small plan 1 150 4 bedroom double story rietveld schröder wikiwand builder escaneo esad clics rietveld schroder house gerrit archdaily22 schroder house sectionrietveld schröder house data photos plans wikiarquitecturarietveld schröder house data photos plans … About the house • mrs. Autocad drawing rietveld schroder house in utrecht ground floor dwg.

29+ Schröder House Plan Images. This small house is a manifestation of the ideals of the de stijl group in the early 20th century and is an icon of modern architecture.the schröder house is the only building of its type. The design is well organized in layers and optimized for 1:100 scale printing. Plan • inside there is no static accumulation … Rietveld schröderhuis) is one of the most iconic and recognizable houses in modern architecture. Inside there is not a static accumulation of rooms, but a dynamic, and changing open area.

The design is well organized in layers and optimized for 1:100 scale printing schröder house. To view the image in fullscreen, register and log in.

22/09/2019 · rietveld schröder house aka schröder house (dutch: The preview image of the project of this architecture derives directly from our dwg design and represents exactly the content of the dwg file. 88 rows · contemporary pioneering houses by such architects as adolf loos and le … Ground floor and first plan schrӧder huis gerr rietveld. The rietveld schröder house acts as a radical break with all architecture.

Rietveld schröder house schröder house 2. Gerrit Rietveld Davide Adamo Rietveld Schroder House Divisare
Gerrit Rietveld Davide Adamo Rietveld Schroder House Divisare from divisare-res.cloudinary.com
This small house is a manifestation of the ideals of the de stijl group in the early 20th century and is an icon of modern architecture.the schröder house is the only building of its type. Must know modern homes the rietveld history of art architecture and sculpture schröder house data iconic houses gerrit yzing schroder left moucharaby windows figure 4 autocad drawing. 29/12/2010 · completed in 1925 in utrecht, the netherlands. From its neutral gray and black tones, to its use of primary colors and strong angles, its design is the epitome of modern, even today the home looks as contemporary as ever. Autocad drawing rietveld schroder house in utrecht ground floor dwg. Ground floor and first plan schrӧder huis gerr rietveld. Plan • inside there is no static accumulation … Rietveld schröderhuis) is one of the most iconic and recognizable houses in modern architecture.

88 rows · contemporary pioneering houses by such architects as adolf loos and le …

Ground floor and first plan schrӧder huis gerr rietveld. The preview image of the project of this architecture derives directly from our dwg design and represents exactly the content of the dwg file. 12/09/2015 · schroder house floor plan. It was constructed in utrecht in 1924. 27/11/2016 · house and the fifth element 1125 sq ft great buildings drawing schroder compact small plan 1 150 4 bedroom double story rietveld schröder wikiwand builder escaneo esad clics rietveld schroder house gerrit archdaily22 schroder house sectionrietveld schröder house data photos plans wikiarquitecturarietveld schröder house data photos plans … Rietveld schröder house schröder house 2. 88 rows · contemporary pioneering houses by such architects as adolf loos and le … Rietveld schröderhuis) is one of the most iconic and recognizable houses in modern architecture. Must know modern homes the rietveld history of art architecture and sculpture schröder house data iconic houses gerrit yzing schroder left moucharaby windows figure 4 autocad drawing. 29/12/2010 · completed in 1925 in utrecht, the netherlands. About the house • mrs. Autocad drawing rietveld schroder house in utrecht ground floor dwg. Still as visionary and eccentric as it was when it was built in the 1920s, the schroder house …

To view the image in fullscreen, register and log in. The rietveld schröder house acts as a radical break with all architecture. 22/09/2019 · rietveld schröder house aka schröder house (dutch: About the house • mrs. It was constructed in utrecht in 1924.

29/12/2010 · completed in 1925 in utrecht, the netherlands. 1920 S Rietveld Schroder House In Utrecht Is A Simple Elegant And Completely Transformable Home
1920 S Rietveld Schroder House In Utrecht Is A Simple Elegant And Completely Transformable Home from inhabitat.com
Rietveld schröder house schröder house 2. To view the image in fullscreen, register and log in. Plan • inside there is no static accumulation … Must know modern homes the rietveld history of art architecture and sculpture schröder house data iconic houses gerrit yzing schroder left moucharaby windows figure 4 autocad drawing. 22/09/2019 · rietveld schröder house aka schröder house (dutch: Still as visionary and eccentric as it was when it was built in the 1920s, the schroder house … 27/11/2016 · house and the fifth element 1125 sq ft great buildings drawing schroder compact small plan 1 150 4 bedroom double story rietveld schröder wikiwand builder escaneo esad clics rietveld schroder house gerrit archdaily22 schroder house sectionrietveld schröder house data photos plans wikiarquitecturarietveld schröder house data photos plans … The design is well organized in layers and optimized for 1:100 scale printing.

From its neutral gray and black tones, to its use of primary colors and strong angles, its design is the epitome of modern, even today the home looks as contemporary as ever.

29/12/2010 · completed in 1925 in utrecht, the netherlands. Rietveld schröderhuis) is one of the most iconic and recognizable houses in modern architecture. 27/11/2016 · house and the fifth element 1125 sq ft great buildings drawing schroder compact small plan 1 150 4 bedroom double story rietveld schröder wikiwand builder escaneo esad clics rietveld schroder house gerrit archdaily22 schroder house sectionrietveld schröder house data photos plans wikiarquitecturarietveld schröder house data photos plans … About the house • mrs. Inside there is not a static accumulation of rooms, but a dynamic, and changing open area. Rietveld schröder house schröder house 2. To view the image in fullscreen, register and log in. 22/09/2019 · rietveld schröder house aka schröder house (dutch: 12/09/2015 · schroder house floor plan. 88 rows · contemporary pioneering houses by such architects as adolf loos and le … It was constructed in utrecht in 1924. The preview image of the project of this architecture derives directly from our dwg design and represents exactly the content of the dwg file. The rietveld schröder house acts as a radical break with all architecture.

Plan • inside there is no static accumulation … This small house is a manifestation of the ideals of the de stijl group in the early 20th century and is an icon of modern architecture.the schröder house is the only building of its type. 12/09/2015 · schroder house floor plan. 29/12/2010 · completed in 1925 in utrecht, the netherlands. About the house • mrs.

22/09/2019 · rietveld schröder house aka schröder house (dutch: Schroder House Drawings House Design Drawing Schroder House Contemporary Architecture House
Schroder House Drawings House Design Drawing Schroder House Contemporary Architecture House from i.pinimg.com
Rietveld schröderhuis) is one of the most iconic and recognizable houses in modern architecture. Autocad drawing rietveld schroder house in utrecht ground floor dwg. Still as visionary and eccentric as it was when it was built in the 1920s, the schroder house … The rietveld schröder house acts as a radical break with all architecture. It was constructed in utrecht in 1924. To view the image in fullscreen, register and log in. Must know modern homes the rietveld history of art architecture and sculpture schröder house data iconic houses gerrit yzing schroder left moucharaby windows figure 4 autocad drawing. This small house is a manifestation of the ideals of the de stijl group in the early 20th century and is an icon of modern architecture.the schröder house is the only building of its type.

27/11/2016 · house and the fifth element 1125 sq ft great buildings drawing schroder compact small plan 1 150 4 bedroom double story rietveld schröder wikiwand builder escaneo esad clics rietveld schroder house gerrit archdaily22 schroder house sectionrietveld schröder house data photos plans wikiarquitecturarietveld schröder house data photos plans …

Autocad drawing rietveld schroder house in utrecht ground floor dwg. Plan • inside there is no static accumulation … The design is well organized in layers and optimized for 1:100 scale printing. 27/11/2016 · house and the fifth element 1125 sq ft great buildings drawing schroder compact small plan 1 150 4 bedroom double story rietveld schröder wikiwand builder escaneo esad clics rietveld schroder house gerrit archdaily22 schroder house sectionrietveld schröder house data photos plans wikiarquitecturarietveld schröder house data photos plans … Must know modern homes the rietveld history of art architecture and sculpture schröder house data iconic houses gerrit yzing schroder left moucharaby windows figure 4 autocad drawing. 29/12/2010 · completed in 1925 in utrecht, the netherlands. This small house is a manifestation of the ideals of the de stijl group in the early 20th century and is an icon of modern architecture.the schröder house is the only building of its type. 12/09/2015 · schroder house floor plan. 22/09/2019 · rietveld schröder house aka schröder house (dutch: Still as visionary and eccentric as it was when it was built in the 1920s, the schroder house … Rietveld schröderhuis) is one of the most iconic and recognizable houses in modern architecture. Ground floor and first plan schrӧder huis gerr rietveld. From its neutral gray and black tones, to its use of primary colors and strong angles, its design is the epitome of modern, even today the home looks as contemporary as ever.

29+ Schröder House Plan Images. Rietveld schröderhuis) is one of the most iconic and recognizable houses in modern architecture. 29/12/2010 · completed in 1925 in utrecht, the netherlands. To view the image in fullscreen, register and log in. 22/09/2019 · rietveld schröder house aka schröder house (dutch: Still as visionary and eccentric as it was when it was built in the 1920s, the schroder house …

88 rows · contemporary pioneering houses by such architects as adolf loos and le … schröder house. The design is well organized in layers and optimized for 1:100 scale printing.




11+ Zagreb Croatia Pictures 26+ Dfb Wallpaper 2021 Background
Your browser is out-of-date!

Update your browser to view this website correctly. Update my browser now

×